νέα υόρκη
Η Πιο Αλλόκοτη Κάτοψη Που Θα Δεις Σήμερα
Κάπου εκεί ψηλά, στον ουρανό της Νέας Υόρκης, υπάρχει ένα διαμέρισμα με φανταστική θέα, με 320 γενναιόδωρα τετραγωνικά, με τέσσερα υπνοδωμάτια όλα με θέα, με φοβερές παροχές και 10 χιλιάρικα κοινόχρηστα/φόρους το μήνα. Ένα διαμέρισμα που κοστίζει 9,4 εκατομμύρια δολάρια. Κοίτα, όμως, πώς είναι η κάτοψή του:

Το σπιτόσκυλο το κοίταξε, το ξανακοίταξε, το γύρισε, το στριφογύρισε, και τελικά συνειδητοποίησε πως δεν κάνουν τα μάτια του πουλάκια: Για να πας από το σαλόνι στο μάστερ μπέντρουμ να ξαποστάσεις σαν άνθρωπος, πρέπει να περάσεις από όλα τα υπόλοιπα υπνοδωμάτια. Τί να είναι αυτό το πράγμα; Δύο διαμερίσματα που έγιναν ένα; Έτσι εξηγείται και η αδιανόητη δεύτερη κουζίνα στο μάστερ μπέντρουμ; Που σε δεύτερη ανάγνωση είναι και κατανοητή: Σου 'ρθε πείνα μες τη νύχτα, πού να τρέχεις στην άλλη κουζίνα, θα ξυπνήσεις και τους άλλους στο δρόμο.
Ωραία θέα, πάντως!
Ορθάνοιχτο Κι Απλωμένο: Μεγα-Λοφτ Στο Σόχο

Στο Σόχο του Μανχάταν, σε σημείο πολύ χιπ και σικ και χάπενινγκ ράιτ νάου, στη γωνιά περίπου Σπρινγκ και Μέρσερ, ένα στενό απ' τη Μπρόντγουεη (δες μια φωτό από την αποκάτω γωνία, που έβγαλε το σπιτόσκυλο το καλοκαίρι), υπάρχει αυτό το χτίριο με διαμερίσματα που λέγεται New Museum Building και το οποίο δεν έχει σχέση μ' αυτό. Σ' αυτό το χτίριο πωλείται ετούτο το αριστούργημα. Το βρήκε η σπιτοσκυλοφαν Rafaella και μπορείς να μπεις να το δεις, να γεμίσουν τα μάτια σου άπλα και ασπρίλα.
Διαφήμιση 300×250 Google
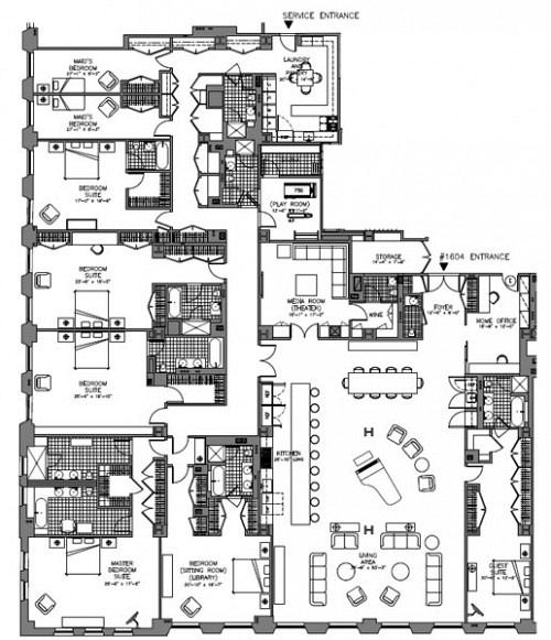
Το Γαμόσπιτο Στο Σέντραλ Παρκ

Το σπιτόσκυλο εδώ οφείλει να διευκρινήσει ότι δεν βρίζει το συγκεκριμένο διαμέρισμα, ίσα ίσα, ούτε και γίνονται τίποτα γάμοι εκεί πέρα. Απλά το σπίτι έχει σχήμα Γ, τι να κάνουμε, έτσι είναι, να, δες την αλλόκοτη κάτοψή του:

Μια Απίθανη, Αδιανόητη Κάτοψη
Τι φτιάν'ς αν έχεις 900 τετραγωνικά χώρο; Ό,τι θες φτιαν'ς. Δες αυτή την κάτοψη:

Ετούτο το πράγμα είναι ένα διαμέρισμα στο νότιο Μανχάταν, ένα θεσπέσιο πράγμα, ολοκαίνουριο, σε χτίριο πολύ σικ, δια χειρός Φιλίπ Σταρκ κι έτσι ναούμ, με τρομερές ανέσεις κι ευκολίες, και μια τιμή στα 15,5 εκατομμύρια ντόλαρζ, με το συμπάθειο κιόλας. Βλέποντάς το το σπιτόσκυλο έχει να παρατηρήσει πως προφανώς δεν είναι φτιαγμένο για ανθρώπους που μαγειρεύουν, καθώς η "κουζίνα" είναι μέσα στο σαλόνι και μοιάζει πάρα πολύ με μπαρ, κι εννοεί τα μπαρ που πας και πίνεις για να φύγουν οι καημοί. Δεύτερον, το σπιτόσκυλο θα μετέτρεπε σε dt το υπνοδωμάτιο αριστερά απ' το σαλόνι όπως κοιτάς σε βιβλιοθήκη, και τα δωμάτια των καθαριστριών σε home theater. Α, και τα δύο μπάνια στη μάστερ σουίτα. Θα τα 'κανε ένα.
Εσύ τί αλλαγές θα έκανες, λέγε.
Θυμήσου κατόψεις:
Ένα διαμέρισμα με θέα Σέντραλ Παρκ
Μονοκατοικία με αυλή στο Τέξας
Άλλο ένα διαμέρισμα στη Νέα Υόρκη
Βίλα στην Εκάλη
Διαμέρισμα στην Ηρώδου Αττικού
Στην Οικοδομή: Ρετιρέ Στη Νέα Υόρκη
Το σπιτόσκυλο δε συνηθίζει να σου δείχνει μισοτελειωμένα διαμερίσματα, καθώς δεν ξέρει αν έχεις το φετίχ του μπετόν, αυτό το φτερούγισμα που παθαίνουν κάτι αρχιτέχτονες και κάτι ιντήριορ ντιζάινερζ όταν βλέπουν οικοδομές στα μπετά με σκαλωσιές και ξύλα, αυτό τον ενθουσιασμό το σχεδόν ερωτικό, το βλέπεις στα μάτια τους, καθώς αναλογίζονται δυνατότητες. Αυτοί, λοιπόν, θα απολαύσουν μερικές εικόνες από ένα πολύ χάι προφάιλ ρετιρέ ενός κτιρίου διαμερισμάτων που βρίσκεται στα τελειώματα στο Γουεστ Βίλατζ της Νέας Υόρκης, δίπλα σε μερικά ακόμα πιο χάι προφάιλ χτίρια, όπως το ροζουλί Palazzo Chuppi του Τζούλιαν του Σνάμπελ ή οι δυο πύργοι του Ρίτσαρντ του Μάιερ που είναι κολλητά δίπλα, πράγμα που σημαίνει ότι πιθανότα από το διαμέρισμα αυτό θα μπορείς να βλέπεις κατευθείαν μέσα στη τζαμαρία του σπιτιού του Χιου Τζάκμαν.
Κυρίες, λυσσάξτε.
Στις φωτογραφίες μπορείς να δεις διάφορα ενδιαφέροντα, όπως τα κεκκλιμένα τζάμια της πρόσοψης, τη θέα, και δυο εικόνες από ένα τελειωμένο διαμέρισμα-δείγμα στο ίδιο κτίριο. Ετούτο το μπάνιο το σπιτόσκυλο το 'δειξε στη σπιτοσκύλα και συμφωνούν: Μ' αυτά τα χρώματα θα φτιάξουνε το μπάνιο τους στη βίλα που θα χτίσουν όταν το σπιτόσκυλο ολοκληρώσει το πεπρωμένο του και καταχτήσει τα ίντερνετς ολοκληρωτικά, πέρα ως πέρα:
Παρεμπιπτόντως, το ρετιρέ αυτό μόλις πουλήθηκε, η τιμή του ήτανε 24 εκατομμύρια, κάποιος μάλλον το πήρε με λίγο λιγότερα. Είναι 650 τετραγωνικά, μεζονέτα, και έχει διάφορες χλιδοπαροχές, καλύτερη όλων η υπηρεσία ντελίβερι απ' το εστιατόριο Perry St του Μισελεναστεράτου σεφ του Ζαν του Ζορζ του Φονγκερίχτεν, ω γιες, κι ακόμα καλυτερότερη η υπηρεσία που, λεει, σου γεμίζουνε το αποθηκάκι με προμήθειες απ' το εστιατόριο, κρέατα, χόρτα, τυριά, τέτοια. Ο Ζαν ο Ζορζ ο Φονγκερίχτεν παει σουπερμάρκετ για την παρτη σου, δηλαδή, ενώ κάθεσαι και χαζεύεις τους κοιλιακούς του Γουλβερίν απέναντι.
24 εκατομμύρια. Πολλές θα έλεγαν ότι αξίζει τα λεφτά του.
ΥΓ: Το κτίριο αυτό το σχεδίασαν αυτοί. Ναι. Οι ίδιοι που έφτιαξαν τον ξαπλωμένο φαλλό στο Άμπου Ντάμπι.
Το Διαμέρισμα Των 5 Τετραγωνικών Μέτρων
Το σπιτόσκυλο σου 'χει δείξει μπόλικα μικρά διαμερίσματα στο παρελθόν, από φτωχαδάκια στο Χονγκ Κονγκ που ζουν σε 9 τετραγωνικά μέχρι douchebags στο Μανχάταν που ζουν σε 20. Αλλά τα ρεκόρ είναι για να σπάνε, κι αυτό που θα σου δείξει σήμερα είναι τόσο εξτρίμ που καλά θα κάνεις να βγάλεις τα παιδιά απ' το δωμάτιο, να πάρεις δυο ηρεμιστικά, να προετοιμαστείς ψυχολογικά, και μετά να κάτσεις να δεις.
Δεν είναι μικρό. Δεν είναι cosy ή εκκεντρικό. Είναι μια μικρή ντουλάπα. Τα αεροπλάνα της γραμμής έχουν καλύτερο μπάνιο. Το μόνο καλύτερο που έχει από ένα κελί φυλακής είναι ότι δεν έχει μέσα ένα παχύσαρκο που σε κοιτά σα γλειφιτζούρι και γι' αυτό τη νύχτα δεν κλείνεις μάτι και ξαπλώνεις με την πλάτη γυρισμένη προς τον τοίχο. Είναι ένα "διαμέρισμα" 5 τετραγωνικών (55 τετραγωνικά πόδια, κάνε τον υπολογισμό) στη Hell's Kitchen του Μανχάταν, όπου μένει ο 24χρονος Έντι, ο οποίος είναι πολύ χαρούμενος, γιατί μπορεί να μη χωράει να σταθεί όρθιος μέσα στο σπίτι του, αλλά μπορεί να ζει στο Μανχάταν και να έχει και τέσσερις τοίχους να καρφώνει τα ημερολόγια με ημίγυμνους άντρες και να αποθηκεύει τα Details του. Είναι πολύ περήφανος και ευχαριστημένος, λέει στη New York Post (έχει και βίντεο, αξίζει να το δεις) και τα 800 δολάρια που δίνει δεν του φαίνονται και πάρα πολλά.
Το σπιτόσκυλο κουνά το κεφάλι απογοητευμένο, αναρωτιέται σε τι κόσμο θα φέρει τα κουτάβια του. 2012 έλα πιο γρήγορα.
Θυμήσου μικρόσπιτα:
Θυμήσου ακόμα:
Διαμερίσματα των 9 τετραγωνικών στο Χονγκ Κονγκ
To σπίτι των 9 τετραγωνικών
Το μικρότερο διαμέρισμα της Νεάς Υόρκης
Ζώντας σε 20 τετραγωνικά μέτρα
Το διαμέρισμα των 25 τετραγωνικών
Το σπίτι των 28 τετραγωνικών
Το σπίτι των 30 τετραγωνικών
Ωχ: Η Γέφυρα Κουνιέται
Αυτή είναι η Μανχάταν Μπριτζ, που συνδέει το Μανχάταν με το Μπρούκλιν απάνω απ' το Ιστ Ρίβερ. Και καθώς περνούν τα τρένα, κουνιέται. Όχι λίγο, ταλαντεύεται πολύ. Δεν το καταλαβαίνεις αν τη διασχίζεις πεζός ή με αυτοκίνητο εκείνη την ώρα, αλλά στο timelapse φαίνεται, και μοιάζει τρομακτικό. Αλλά είναι ασφαλές. Γιατί υπάρχουν ειδικοί που τα προσέχουν αυτά και ξέρουν αν υπάρχει κίνδυνος. Ε;
Πάρε και μια φωτογραφία της γέφυρας by σπιτόσκυλο:
Βίντεο: Πόλεις Σε Timelapse
Αυτή είναι η αγαπημένη του σπιτόσκυλου Νέα Υόρκη. Βιντεοσκοπημένη πολύ γρήγορα. Έμπα να δεις αντίστοιχα πολύ ωραία και όμορφα και χαλαρωτικά βίντεα από το Λος Άντζελες, τo Λονδίνο, τη Μόσχα και το Παρίσι. Ωραία πράματα.
Ποιος Ζει Εδώ: Ένας Οικονομικός Χάρτης Της Νέας Υόρκης
Το σπιτόσκυλο πολύ θα ήθελε να δει έναν αντίστοιχο χάρτη της Αθήνας. Αν και είμαστε τουρλού τουρλού εδώ, βλέπεις τύπους που δεν τους πιάνει το μάτι σου να παρκάρουν το Καγιέν κάτω από πανωσήκωμα διπλοκατοικίας της συμφοράς στο Μενίδι (δηλαδή μάλλον συμβαίνει κι αυτό -το σπιτόσκυλο δεν ξέρει ούτε καν πού είναι το Μενίδι), κάποια συμπεράσματα θα μπορούσανε να βγουν. Όπως έχουν τα πράγματα, μπορείς εσύ να παίξεις βλέποντας πόσα βγάζουν οι κάτοικοι των διαφόρων περιοχών της Νέας Υόρκης, που είναι ένα μέρος αρκετά μεγάλο και ετερόκλητο. Μετά βάλτα κάτω (βοηθά στον υπολογισμό της ισοτιμίας το xe.com) και σκέψου αν μπορείς να το κάνεις το βήμα. Το σπιτόσκυλο λέει: Κάντο. Τζαστ ντου ητ.
Αξίζει Τα Λεφτά Του ΧΧ: Χλιδιαμέρισμα Στη Νέα Υόρκη
Ορίστε τι παίρνεις: Μεζονέτα 210 τετραγωνικών σε χλιδάτο νέο κτίριο του Τσέλσι με θέα το ποτάμι, απίθανη διώροφη βιβλιοθήκη, τρία υπνοδωμάτια και -δώσε προσοχή- γκαράζ-ασανσέρ που σε φέρνει με το τουτού στον όροφό σου.Έμπα για να δεις πληροφορίες, renderings, κάτοψη (very nice) και, κυρίως, την τιμή, για να σκεφτείς και να αποφανθείς.
Το Παλάτι Του Σουλτάνου Ταγίπ Ερντογάν
Ένα Γιγάντιο Διαμέρισμα Στον Ουρανό
Στον Ήλιο 3: Σπίτια Της Καλοκαιρινής Ελλάδας
Η Βίλα Των Pink Floyd Στη Ρόδο Είναι Το Αναπάντεχο Χρυσό Τούβλο Του Καλοκαιριού
Το Κυανούν Σπίτι Στην Εύβοια






















