Home
INFO
ΔΙΑΦΗΜΙΣΟΥ
ΕΠΙΚΟΙΝΩΝΙΑ
Το Παλάτι Του Σουλτάνου Ταγίπ Ερντογάν
Ένα Γιγάντιο Διαμέρισμα Στον Ουρανό
Στον Ήλιο 3: Σπίτια Της Καλοκαιρινής Ελλάδας
Η Βίλα Των Pink Floyd Στη Ρόδο Είναι Το Αναπάντεχο Χρυσό Τούβλο Του Καλοκαιριού
Το Κυανούν Σπίτι Στην Εύβοια
Το σπιτόσκυλο
αρχιτεκτονική
design
real estate
αληθινά σπίτια
αξίζει τα λεφτά του;
ελλάδα
πόλη
σκυλοσπιταρόνες
Η Μυστική Ιστορία Της Aeron, Μιας Καρέκλας
Διαμέρισμα Με Θέα, Στο Τελ Αβίβ
Ένα Μικρό Διαμέρισμα Στην Πλάκα
11/11/2012
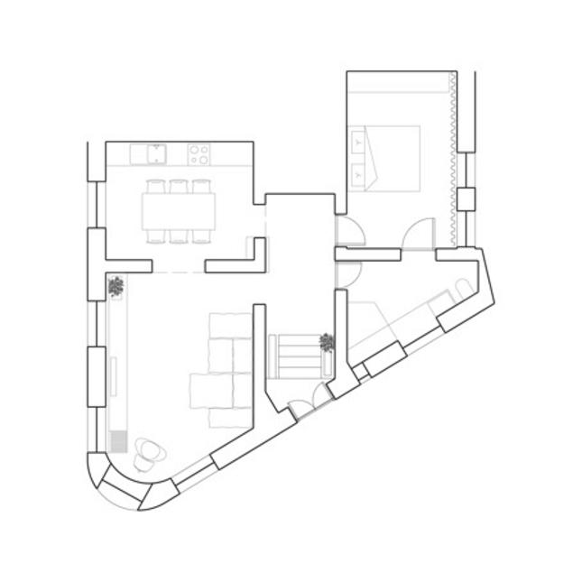
k-studio_slab_02
Εικόνα 2 από 9
Και τώρα, φωτογραφίες από ένα δυάρι 81 τετραγωνικών στην Πλάκα, που το σχεδίασαν
αυτοί
.
Κοινοποιήστε:
Mοιραστείτε στο Facebook(Ανοίγει σε νέο παράθυρο)
Facebook
Share on X(Ανοίγει σε νέο παράθυρο)
X
Διαφήμιση 300×250 Google
design
,
hot or not
,
αθήνα
,
αληθινά σπίτια
,
ελλάδα
,
σπέσιαλ
28
Σχόλια
Tweet
Διαφήμιση 300×250 – Google
ΔΗΜΟΦΙΛΗ
Ένα Μικροσκοπικό Λοφτάκι-Τρανσφόρμερ Στο Χονγκ Κονγκ
Το Σπίτι Από Τα "Μαύρα Μεσάνυχτα": Πωλείται!
Τα Μεγαλύτερα Σπίτια Στην Ελλάδα ΙΙ: Εκάλη
Τα Μεγαλύτερα Σπίτια Στην Ελλάδα: Φιλοθέη
Το Τέρας Της Κηφισιάς Σε Νέες, Υπέρλαμπρες Φωτογραφίες
ΣΧΟΛΙΑ
MALWARE_LIKE_payload_here
στο
Είναι Αυτή Η Εποχή Του Χρόνου Πάλι
Нумизматический музей (Афины, Греческая Республика) TUTURIZM
στο
Φωτογραφίες Από Το Νομισματικό Μουσείο
Νικόλας Καρέλλος
στο
Συνέντευξη: Η Ασπρίλα Του Αιγαίου Είναι Ένα Παραμύθι
Νικόλας Καρέλλος
στο
Συνέντευξη: Η Ασπρίλα Του Αιγαίου Είναι Ένα Παραμύθι
Νικόλας Καρέλλος
στο
Συνέντευξη: Η Ασπρίλα Του Αιγαίου Είναι Ένα Παραμύθι
Facebook
RdecoShop